Longueuil (Le Vieux-Longueuil)

Vente d'entreprise à vendre 11, Rue Non Disponible-Unavailable, Longueuil (Le Vieux-Longueuil)

  • Prix 109 000$ +TPS/TVQ
  • No Centris19079163

Description du bien

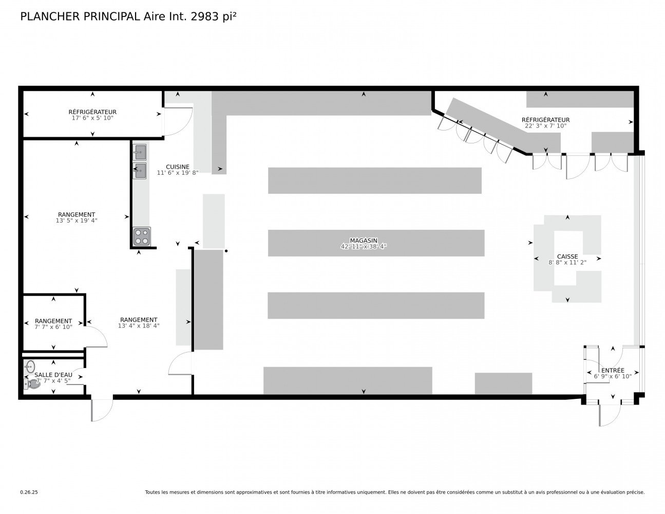
Opportunité d'acquérir un commerce franchisé bien établi, en opération depuis plusieurs décennies. Entreprise stable bénéficiant d'une clientèle fidèle et d'un modèle d'affaires éprouvé. Le commerce est affilié à un franchiseur reconnu et solidement implanté, offrant structure, soutien et encadrement opérationnel. La vente concerne l'entreprise seulement (sans l'immeuble). Un potentiel de croissance est présent, notamment par le développement de la boucherie et du service de livraison. Idéal pour entrepreneur, gestionnaire ou investisseur impliqué souhaitant reprendre une entreprise clé en main.

Détails du bien

Caractéristiques

Pièce(s) et Espace(s) additionnel(s)