Montréal (Villeray/Saint-Michel/Parc-Extension)
Condo à louer 7704, Rue Marquette, app. 2, Montréal (Villeray/Saint-Michel/Parc-Extension)
- Prix 1 890$ / mois
- Chambre(s)2
- Salle(s) de bains1
- Superficie habitable 81.80 m²
- No Centris11385949
Description du bien
Magnifique appartement comprenant une chambre et un bureau, situé dans un quartier paisible et très recherché. Idéalement positionné près des autoroutes 15 et 40, du métro, des transports en commun, des écoles et des hôpitaux. À seulement quelques minutes du marché Jean-Talon, des commerces de proximité, des parcs et d'une piste cyclable. Niché dans un secteur verdoyant et arboré, l'appartement offre un stationnement facile dans la rue. Ce logement lumineux et soigneusement entretenu dispose également d'une terrasse arrière privée, parfaite pour profiter de moments de détente en plein air. Une opportunité à ne pas manquer
Détails du bien
Caractéristiques
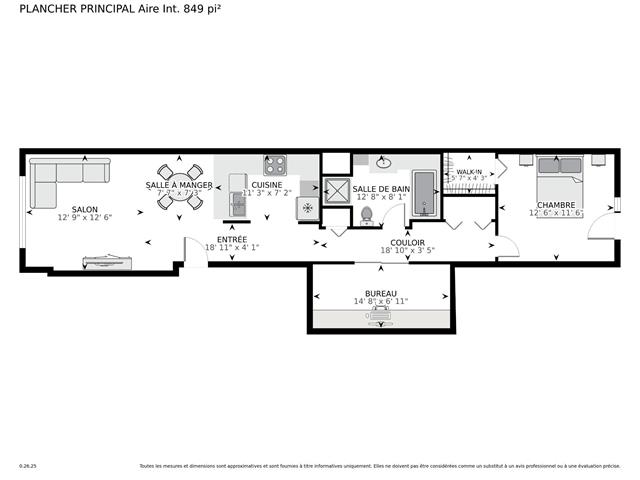
Pièce(s) et Espace(s) additionnel(s)
Nbre pièces : 8
Nbre chambres : 2
Nbre salles de bain + salles d'eau : 1 + 0
| Niveau | Pièce(s) | Dimensions |
|---|---|---|
| Rez-de-chaussée | Penderie (Walk-in) | 5.1x4.3 pi. |
| Rez-de-chaussée | Chambre à coucher principale | 12.6x11.6 pi. |
| Rez-de-chaussée | Bureau à domicile | 14.8x6.11 pi. |
| Rez-de-chaussée | Salle de bain | 12.8x8.1 pi. |
| Rez-de-chaussée | Hall d'entrée | 10.11x4.1 pi. |
| Rez-de-chaussée | Cuisine | 11.3x7.2 pi. |
| Rez-de-chaussée | Salle à manger | 7.3x7.4 pi. |
| Rez-de-chaussée | Salon | 12.9x12.6 pi. |